Quadrilocale in vendita

Roma, Via Ugo Pizzarello - Decima
€ 295.000
4 locali 4 locali
133 Mq 133 Mq
1 bagno 1 bagno

Quadrilocale in vendita

Roma, Via Ugo Pizzarello - Decima

Descrizione annuncio

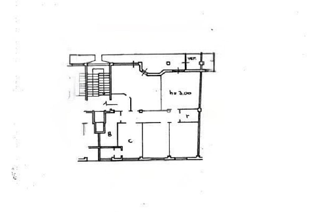
In zona Decima, in un contesto tranquillo e ben servito, proponiamo in vendita un ampio quadrilocale situato al primo piano con ascensore, caratterizzato da ambienti spaziosi e da un'ottima esposizione est/ovest.

L'immobile, rappresenta una soluzione ideale per chi desidera personalizzare la propria casa secondo i propri gusti ed esigenze.
L'ingresso introduce in un salone accogliente, con accesso diretto al balcone, consentendo di godere di uno spazio esterno vivibile, perfetto per un momento di relax.

La zona notte si compone di tre spaziose camere da letto, un bagno finestrato con vasca e un comodo ripostiglio.
Completano la proprietà una soffitta di pertinenza, utile come spazio di stivaggio aggiuntivo, e il riscaldamento autonomo, che permette una gestione indipendente dei consumi.

L'appartamento si trova in una posizione strategica, a pochi minuti dalla stazione Tor di Valle, con collegamenti rapidi verso il centro città, e ben collegato anche alla zona Pianeti, ricca di servizi, scuole, attività commerciali e aree verdi.

Una casa che offre ampi spazi, tranquillità e ottime potenzialità, ideale per famiglie.

Mostra tutto

Nelle vicinanze

Trasporto pubblico Trasporto pubblico
EUR Palasport
EUR Palasport
2,5 Km
EUR Fermi
EUR Fermi
2,7 Km
stazione di Tor di Valle
stazione di Tor di Valle
640 m
Trasporto pubblico
2,3 Km
Pianeta Saturno
Pianeta Saturno
130 m
Ricariche auto elettriche Ricariche auto elettriche
Roma Bombay | EnelX
750 m
Roma Edimburgo | EnelX
930 m
Roma Piazzale Cina 1 | EnelX
1,3 Km
Roma Via Canton | EnelX
1,3 Km
Roma Oceano Pacifico | EnelX
1,5 Km
Scuole Scuole
Giardino d'Europa
550 m
Scuole
680 m
Scuola Media Statale Bachelet
990 m
Scuola Primaria "Via Lione"
1,2 Km
Scuola Media Statale Leonardo da Vinci
1,2 Km
Farmacia Farmacia
Farmacia
270 m
Farmacia Torrino
370 m
Parafarmacia doc*Torrino
890 m
Farmacia Tomaselli
990 m
Parafarmacia È Qui
1,3 Km
Ospedali Ospedali
Istituto San Gallicano
1,6 Km
Istituti Fisioterapici Ospedalieri
1,6 Km
Ospedale San Giovanni Battista
2,5 Km
Sant'eugenio
2,5 Km
Ospedale Israelitico
2,5 Km
Supermercati Supermercati
Conad
570 m
Carrefour Express
590 m
Super Elite
680 m
Eurospin
740 m
doc*Torrino
880 m
Negozi Negozi
La Mollica
590 m
OVS
1,8 Km
Sweet Baby Outlet
2,3 Km
Subdued
2,4 Km
Brandy Melville
2,4 Km
Bar Bar
Bar
1,4 Km
Federici Bruno
1,7 Km
La tazzina stregata
2,1 Km
Il tempio del caffè
2,3 Km
Conca D'oro
2,3 Km
Ristoranti Ristoranti
Pellicola e Farina
300 m
Vossia
530 m
Robertò Roma
590 m
Albino
650 m
Noi Supereroi
920 m
Mostra tutto

Caratteristiche

Rif.:
61109891
Piano:
1 di 1 con ascensore (Piano basso)
Balconi:
1
Camere da letto:
3
Arredamento:
Assente
Condizionamento:
Autonomo
Mostra tutto
Prezzo Prezzo
€ 295.000
Rata mutuo Rata mutuo
€ 1.392 / mese
Spese annue Spese annue
€ 900
Proponi il tuo prezzoProponi il tuo prezzo

Classe Energetica

G
G
G
G
G
G
G
G
G
EP globale non rinnovabile:
175.00 kW h/m² anno
EP globale rinnovabile:
100.00 kW h/m² anno
EP invernale del fabbricato:
EP estiva del fabbricato:
Anno di costruzione:
1960
Riscaldamento:
Autonomo
Tipo impianto:
A radiatori
Tipo alimentazione:
Metano

Ti interessa visionare l'immobile?

Fissa un appuntamento  Fissa un appuntamento

Richiedi informazioni

Clicca su Leggi per aprire l'informativa
* Questi campi sono obbligatori

Calcola il tuo mutuo

Semplice e senza impegno
Anticipo

( % )
Mutuo

( % )

pochi semplici passi

inserisci i tuoi dati
Questionario completato
Grazie per aver richiesto un appuntamento senza impegno con un nostro Consulente del Credito e Assicurativo.

Hai inserito correttamente tutti i dati necessari e a breve riceverai una e-mail con un link da convalidare per inviare i tuoi dati.
Affiliato
Niu.la. Immobiliare Srls
P.zza Francesco Vannetti Donnini, 44 00144 Roma (RM)

Il nostro staff


  • Niubel Lahera
    Affiliata

  • Laura Bevilacqua
    Affiliata

  • Luca Colucci
    Responsabile

  • Celeste Pagani
    Coordinatrice

  • Luigi Ricci
    Collaboratore

  • Giada Ranaldi
    Collaboratrice
P.zza Francesco Vannetti Donnini, 44 00144 Roma (RM)
Zona: Eur Torrino Nord-Decima
Mostra su mappa
Orari: Lunedì - Venerdì 9-13 / 15.30-19.30 Sabato 9-13
Affiliato
Niu.la. Immobiliare Srls
P.zza Francesco Vannetti Donnini, 44 00144 Roma (RM)

2025 Tecnocasa Franchising S.p.A. - P. IVA 08365160152 - Via Monte Bianco 60/A 20089 Rozzano (MI). Ogni agenzia ha un proprio titolare ed è autonoma. Privacy policy | Policy utilizzo | Cookie policy